Home
About
Services
10 Reasons to Hire An Architect
Design News
Contact Us
Design News
Please ensure that JavaScript is enabled otherwise some features may not work.
Geodesic Dome
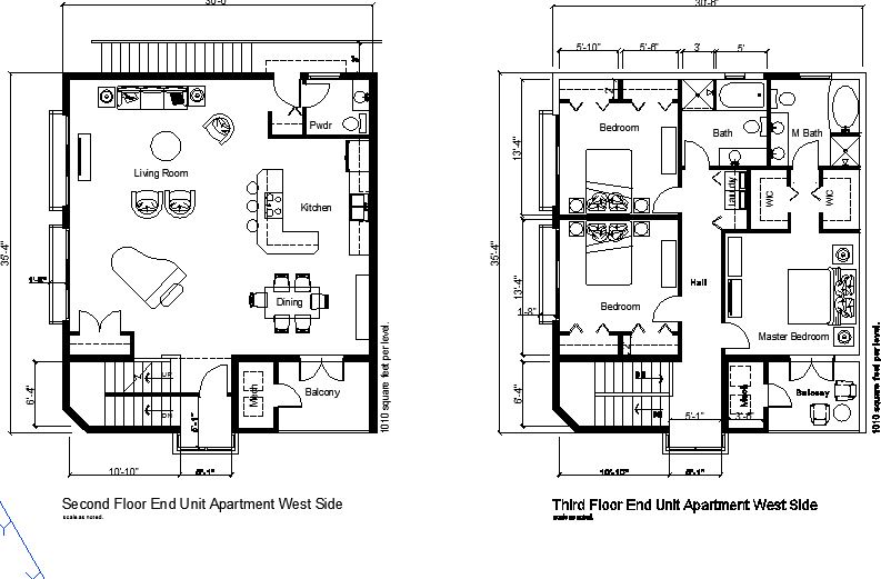
Multi-Use, Apartments, and Shops